0 0 Revolution/Freedom DrivePortsmouth, RI 02871


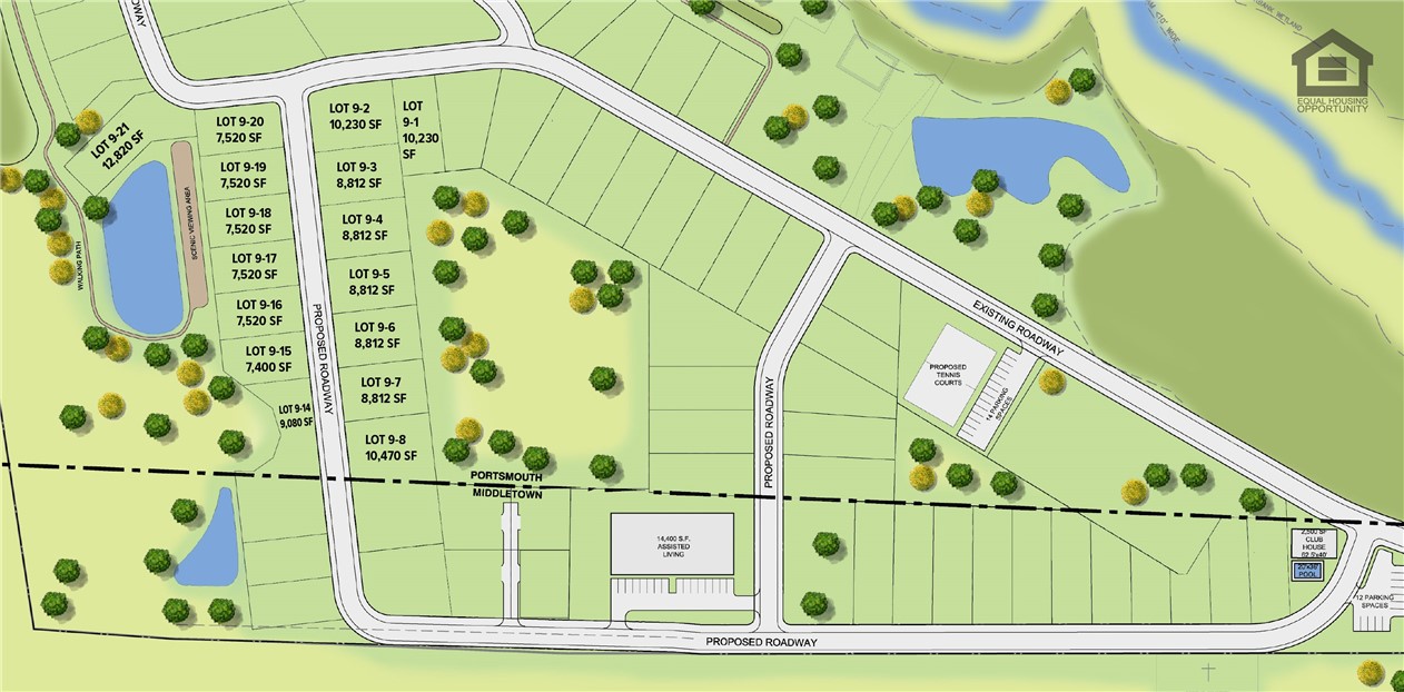
Welcome to Prescott Point- Portsmouth, Rhode Island's premier residential community. Situated on 106 scenic acres, Prescott Point offers you the opportunity to build a brand new home that features all the conveniences of urban living surrounded with the intrinsic beauty of coastal New England. Water views, Bay breezes and spectacular sunsets are some of the many appealing qualities that grant acclaim to the Prescott Point lifestyle. Prescott Point's proximity to historic Newport, Providence and T.F. Green Airport place it in the heart of the region's cultural, business and leisure centers. Enjoy all that Prescott Point has to offer. In this phase the clubhouse and pool will be completed and we couldn't be more excited to add this to our community. Come see what we have to offer. Bring your own builder or use one we have already pre screened. Perfect for year round living or a luxury second home. Homes in the development have a maximum footprint of 1800 square foot. This would equal to about a 3000 square foot two level home. We have a few lots left in Portsmouth and Middletown.
| 4 weeks ago | Listing updated with changes from the MLS® | |
| 3 months ago | Listing first seen on site |
Listing information is provided by Participants of the State-Wide MLS of Rhode Island, Inc. IDX information is provided exclusively for personal, non-commercial use, and may not be used for any purpose other than to identify prospective properties consumers may be interested in purchasing. Information is deemed reliable but not guaranteed. Copyright 2026, State-Wide MLS of Rhode Island, Inc.
Last checked: 2026-02-10 09:58 AM UTC

Did you know? You can invite friends and family to your search. They can join your search, rate and discuss listings with you.