The Crown On High22 High Street 202Boston, MA 02122




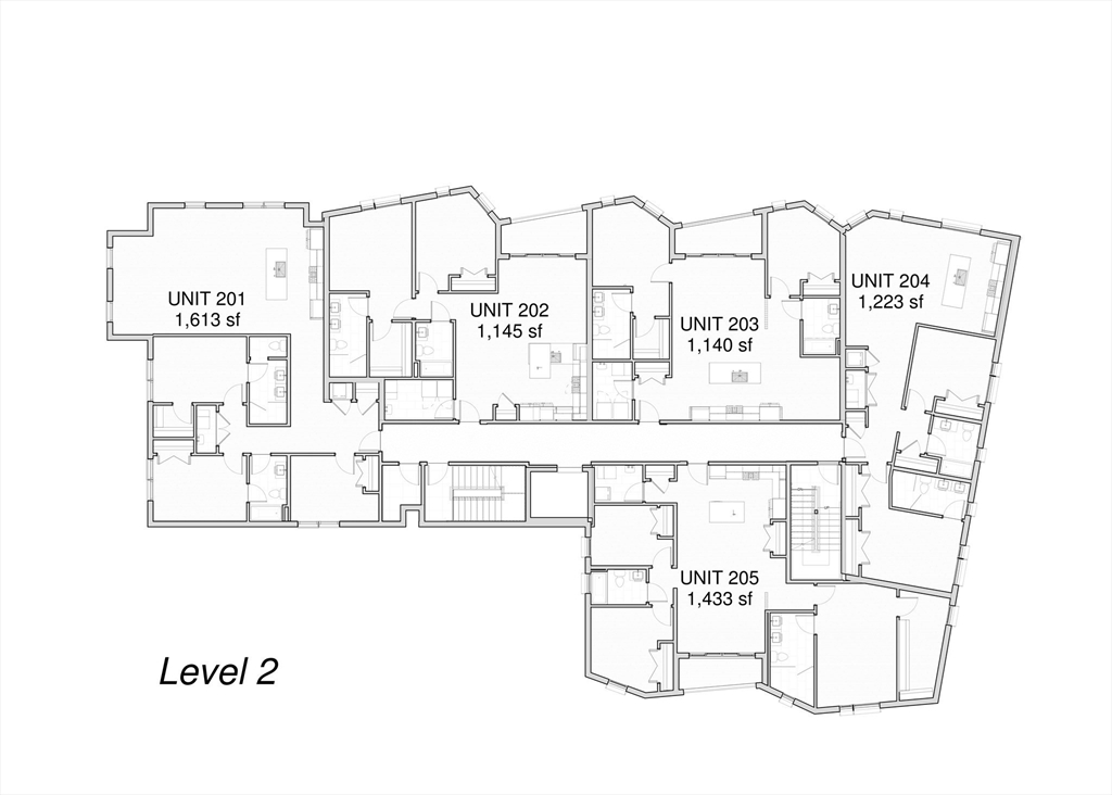
40% Reserved! Welcome to The Crown on High. This prominent new development, perched high on the hill with views of The Boston City Skyline - is waiting for you to call home! Walk into this second floor single level unit that comes with designer high end finishes, Bosch appliance package, high ceilings, open-concept kitchen living, and dining area with natural light. The primary suite is sure to impress with a spacious walk-in closet and an elegant en-suite bathroom. Great sized deck off the living room with city views! Designed for style and convenience with in-unit laundry and parking in the city! More building amenities include a common rooftop deck with gas grills and skyline vistas, plus an elevator accessing all levels, from garage to residence. Located in the heart of Dorchester, this home puts you steps from the city’s best dining, shopping, and transit—urban living at its finest. Units are reserving fast, reach out today to see your new home! A great value for NEW CONSTRUCTION
| 8 hours ago | Listing updated with changes from the MLS® | |
| 9 hours ago | Listing first seen on site |
The property listing data and information, or the Images, set forth herein were provided to MLS Property Information Network, Inc. from third party sources, including sellers, lessors, landlords, and public records, and were compiled by MLS Property Information Network, Inc. The property listing data and information, and the Images, are for the personal, non-commercial use of consumers having a good faith interest in purchasing, leasing or renting listed properties of the type displayed to them and may not be used for any purpose other than to identify prospective properties which such consumers may have a good faith interest in purchasing, leasing or renting. MLS Property Information Network, Inc. and its subscribers disclaim any and all representations and warranties as to the accuracy of the property listing data and information, or as to the accuracy of any of the Images, set forth herein.
Last checked 2026-01-20 04:33 AM UTC

Did you know? You can invite friends and family to your search. They can join your search, rate and discuss listings with you.