Save
Ask
Tour
Hide
$585,000
New Listing
104 Hilltop Rd 2Southbridge, MA 01550
For Sale|Single Family Residence|Active
5
Beds
3
Total Baths
3
Full Baths
2,148
SqFt
$272
/SqFt
2025
Built
County:
Worcester
Call Now: 401-323-8292
Is this the listing for you? We can help make it yours.
401-323-8292
Save
Ask
Tour
Hide
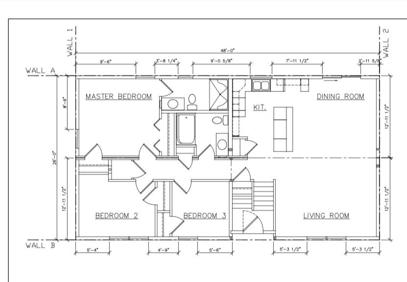
First showing at OPEN HOUSE November 29 and 30-- Do not miss this wonderful opportunity to own this lovely new construction home in subdivision- large flat back yard-this home has large open kitchen/dining area cathedral ceiling large living room 3 bedrooms, master bathroom with walk in tiled shower, state of the art heating, one car garage, large deck - ADU unit is part of this home- full kitchen living room/dining room with 2 bedrooms- full bath- walk out slider to patio-mini split heating and cooling- 5,000 allowance for all appliances- separate electrical for each unit, separate hot water heaters.
Save
Ask
Tour
Hide
Listing Snapshot
Price
$585,000
Days On Site
0 Days
Bedrooms
5
Inside Area (SqFt)
2,148 sqft
Total Baths
3
Full Baths
3
Partial Baths
N/A
Lot Size
1.19 Acres
Year Built
2025
MLS® Number
73457070
Status
Active
Property Tax
N/A
HOA/Condo/Coop Fees
N/A
Sq Ft Source
Owner
Friends & Family
Recent Activity
| 11 hours ago | Listing updated with changes from the MLS® | |
| 11 hours ago | Listing first seen on site |
General Features
Acres
1.19
Attached Garage
Yes
Foundation
Concrete Perimeter
Garage
Yes
Garage Spaces
1
Parking
PavedAttachedGarage
Parking Spaces
6
Property Sub Type
Single Family Residence
Sewer
Public Sewer
SqFt Above
1248
SqFt Below
900
SqFt Total
2148
Style
RanchRaised RanchOther (See Remarks)
Water Source
Public
Zoning
res
Interior Features
Appliances
Electric Water Heater
Basement
FullFinishedWalk-Out Access
Cooling
Heat PumpDuctless
Electric
Circuit Breakers
Heating
Heat PumpElectricDuctless
Interior
Master Downstairs
Laundry Features
Electric Dryer Hookup
Bathroom 1
Level - Basement
Bathroom 2
Level - First
Bathroom 3
Level - First
Bedroom 2
Level - First
Bedroom 3
Level - First
Bedroom 4
Level - Basement
Bedroom 5
Level - Basement
Dining Room
Level - First
Kitchen
Level - First
Living Room
Level - First
Master Bedroom
Level - First
Save
Ask
Tour
Hide
Exterior Features
Lot Features
WoodedCleared
Patio And Porch
DeckPatio
Roof
Shingle
Listing courtesy of Beth Ann Dion of Hometown Realty Associates LLC
The property listing data and information, or the Images, set forth herein were provided to MLS Property Information Network, Inc. from third party sources, including sellers, lessors, landlords, and public records, and were compiled by MLS Property Information Network, Inc. The property listing data and information, and the Images, are for the personal, non-commercial use of consumers having a good faith interest in purchasing, leasing or renting listed properties of the type displayed to them and may not be used for any purpose other than to identify prospective properties which such consumers may have a good faith interest in purchasing, leasing or renting. MLS Property Information Network, Inc. and its subscribers disclaim any and all representations and warranties as to the accuracy of the property listing data and information, or as to the accuracy of any of the Images, set forth herein.
Last checked 2025-11-23 06:39 PM UTC
The property listing data and information, or the Images, set forth herein were provided to MLS Property Information Network, Inc. from third party sources, including sellers, lessors, landlords, and public records, and were compiled by MLS Property Information Network, Inc. The property listing data and information, and the Images, are for the personal, non-commercial use of consumers having a good faith interest in purchasing, leasing or renting listed properties of the type displayed to them and may not be used for any purpose other than to identify prospective properties which such consumers may have a good faith interest in purchasing, leasing or renting. MLS Property Information Network, Inc. and its subscribers disclaim any and all representations and warranties as to the accuracy of the property listing data and information, or as to the accuracy of any of the Images, set forth herein.
Last checked 2025-11-23 06:39 PM UTC
Neighborhood & Commute
Source: Walkscore
Save
Ask
Tour
Hide

Did you know? You can invite friends and family to your search. They can join your search, rate and discuss listings with you.